EDIFICIO COMMERCIALE-DIREZIONALE

Dimensionamento strutturale di fabbricato su progetto architettonico dello studio dell’ingegnere Giuliano Perazzini di Rimini.

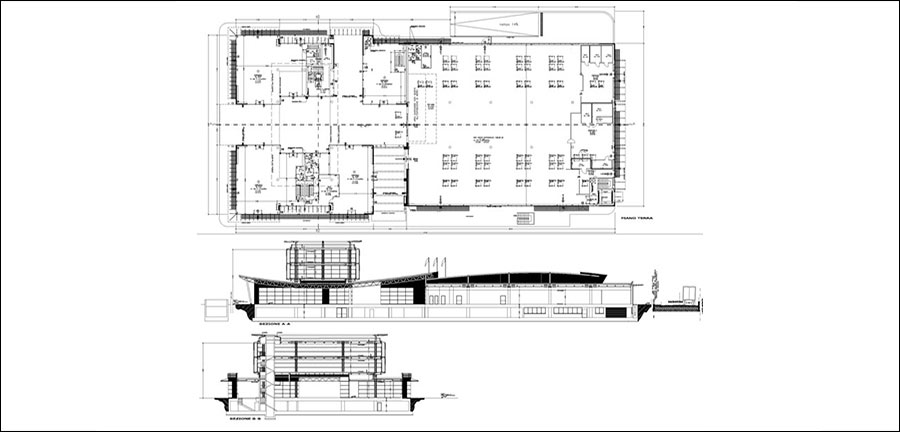
DATI TECNICI: l’intervento riguarda un edificio costituito da due corpi, uno con destinazione a supermercato che si sviluppa per un solo piano fuori terra raggiungendo un’altezza massima pari a 5 ml., mentre l’altro si sviluppa per tre piani fuori terra raggiungendo un’altezza massima pari a 14 ml. con destinazione a negozi a piano terra ed uffici nei rimanenti piani. Complessivamente l’intervento raggiunge i 13.000 mq.

CARATTERISTICHE DELL’INTERVENTO: struttura in elevazione in acciaio, solai in lamiera collaborante e travi secondarie della palazzina uffici collaboranti con il getto del solaio mediante pioli connettori Nelson. La galleria centrale a piano terra è realizzata con due reticolari calandrate collegate con tubolari 200*200*16. Il piano interrato è in C.A. con solaio a piano terra in predalles calcolato per un sovraccarico accidentale di 1000 kg/mq.