HOTEL DUOMO RIMINI

Miglioramento strutturale di un fabbricato esistente su progetto architettonico dello studio Ron Arad Associates di Londra.

DATI TECNICI: l’intervento riguarda un edificio esistente costituito da sette piani fuori terra e da un piano interrato, per una superficie complessiva di 5.200 mq. ed altezza massima fuori terra pari a 20,30 ml.

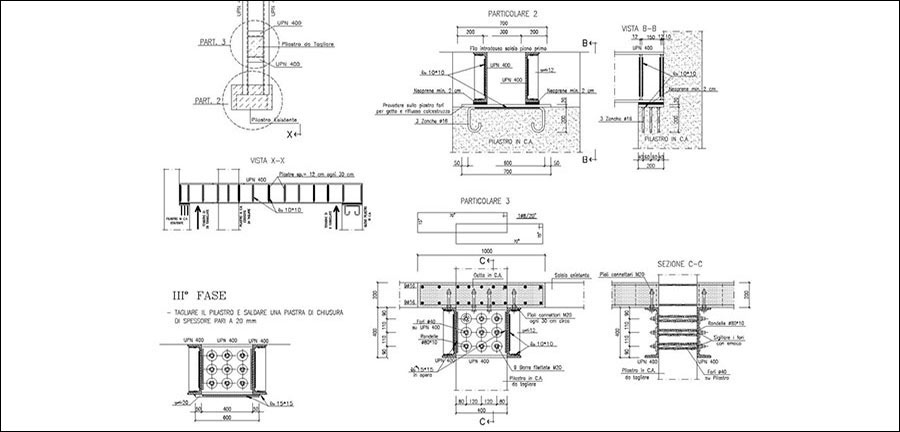
CARATTERISTICHE DELL’INTERVENTO: il miglioramento sismico dell’edificio è ottenuto mediante l’inserimento di nuovi controventi in acciaio ad X tra i pilastri in C.A. esistenti e il rinforzo di alcuni pilastri con cerchiature in acciaio.